东易力天工装
全国服务热线:
13673369777
当前位置:首页>>新闻资讯>>公司新闻

东易力天装饰140㎡现代港式混搭风,这样的家太有格调

作者:东易力天装饰 浏览量:570次 发布日期:2018-10-12 15:21:19
      东易力天装饰140㎡三室两厅现代港式混搭风,这样的家太有格调!!!
      家,是*好的栖息地,它能给予人们心灵*舒适*宁静的感受。它可以简单,不带任何繁复的装饰,它轻奢,却不浮华,它内敛,却又能温柔绽放.....
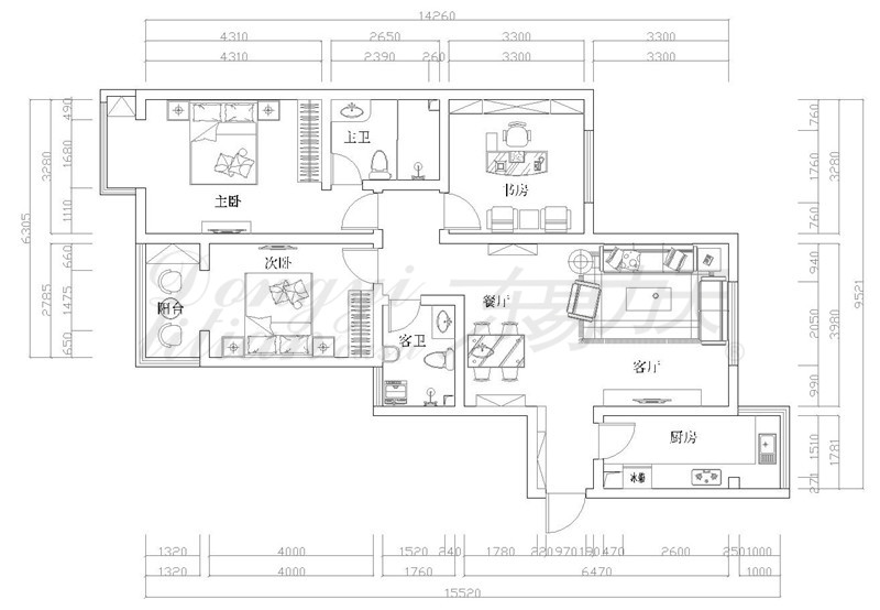
平面效果图
东易力天装饰140㎡现代港式混搭风,这样的家太有格调
现代港式客厅效果图
东易力天装饰140㎡现代港式混搭风,这样的家太有格调
      客厅与餐厅相连,自然光由通透的玻璃窗铺洒进来,为居住空间附上一层温馨恬静的光晕。
现代港式混搭风电视背景墙
东易力天装饰140㎡现代港式混搭风,这样的家太有格调
      后现代的艺术装置与背景装饰画互相呼应,几何形制的家具,低调中彰显出现代精英气质。
东易力天装饰140㎡现代港式混搭风,这样的家太有格调
餐厅
      东易力天装饰设计师在餐厅设计中则采用文艺时尚的色彩,使其占满用餐时间。空间主轴以现代线条和材质整体体现现代时尚感,色调以轻盈的灰白色为主调,搭配香槟色、金色,大面积使用石材金属材质,仿佛映射出明朗通透,而又一丝不茍的都市人生活准则。
      东易力天装饰原创设计总监:崔远翔,原创设计师一对一,平面方案免费深度解析优化。留言“姓名+电话+小区” 报名参观样板间工地!乐装热线:0371—68081807,地址:郑州中州大道商都路交叉口东易力天商务楼四楼。

新闻推荐

扫一扫 QQ在线咨询
扫一扫 关注官方微信
在线客服预约装修装修报价

小程序扫一扫QQ在线咨询

社群扫一扫关注官方微信