东易力天工装
全国服务热线:
13673369777
当前位置:首页>>新闻资讯>>公司新闻

89㎡新潮美式,郑州装修公司开放自由独特魅力

作者:东易力天装饰 浏览量:668次 发布日期:2019-01-24 15:54:49
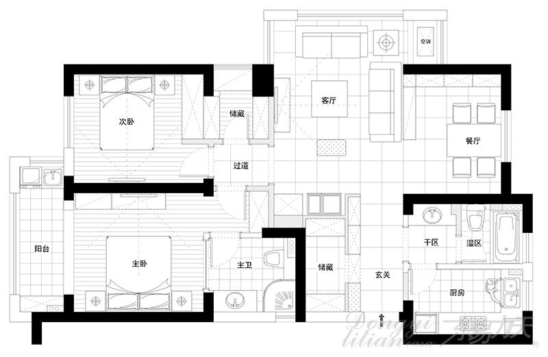
    本案的业主是一对90后新婚小夫妻,对于新潮的美式风格两夫妻都比较中意,设计过程中专门针对美式风格进行沟通。89㎡新潮美式,郑州装修公司开放自由独特魅力
郑州装修公司|东易力天装饰
    本案原户型结构是有两个阳台的。一个是客厅阳台,一个是主卧阳台。
郑州装修公司|东易力天装饰
    客厅外面就是个阳台,考虑到客户的居住人口不多,把客厅扩充至阳台外面,整个客厅变得更舒服了。
郑州装修公司|东易力天装饰
    餐厅和客厅中间就是我们沙发靠背的地方,制作了个类似吧台的形式,增添了客餐厅的互动,平时的家庭聚会就不会局限于客厅的区域。
郑州装修公司|东易力天装饰
    主卧背景采用了实木线条框,中间贴了大花的墙纸,增添了一丝时尚的气息。
郑州装修公司|东易力天装饰
    主卧阳台在南面,把洗衣功能留给了主卧阳台。
郑州装修公司|东易力天装饰
    次卧是亦是孩子房,墙面贴上浅蓝色卡通壁纸,搭配条形多少床品,使整个房间充满童趣。
郑州装修公司|东易力天装饰
    厨房极具美式田园风格,白色的柜门,咖啡色的渐变地砖,墙面浅色方形墙砖,搭配其他几张颜色的墙砖,使整个厨房显得简洁大方,
郑州装修公司|东易力天装饰
客卫干区
郑州装修公司|东易力天装饰
    主卫生间为暗卫,在主卧和主卫中间的墙上,开了个大门洞的形式,采用了玻璃通透的隔断,中间加了一段磨砂贴纸,即达到了采光通透,也不失私密性,也为主卫增添了一丝浪漫的情愫。

新闻推荐

扫一扫 QQ在线咨询
扫一扫 关注官方微信
在线客服预约装修装修报价

小程序扫一扫QQ在线咨询

社群扫一扫关注官方微信