河南东易力天装饰有限公司为您提供郑州酒店别墅装修样板间效果图及装修公司,河南家装公司,郑州装修公司,郑州装饰公司相关资讯,郑州装饰公司敬请关注!
东易力天装饰
全国服务热线:
13673369777
首页
东易力天
企业简介
发展历程
企业荣誉
企业文化
设计团队
极易原创
极易家装案例
原创样板间
3D全景案例
视频直播
企业视频
工地直播
生态工艺
环保辅材
施工工艺
服务体系
服务流程
服务标准
服务保障
新闻资讯
公司新闻
软装配饰
装修问答
营销活动
装修风水
联系我们
当前位置:
首页
>>
极易原创
>>
极易家装案例
郑州家装设计公司
作者:
东易力天装饰
浏览量:2254次 发布日期:2017-11-25 16:55:39
郑州家装设计公司
中海锦苑现代简约风格案例
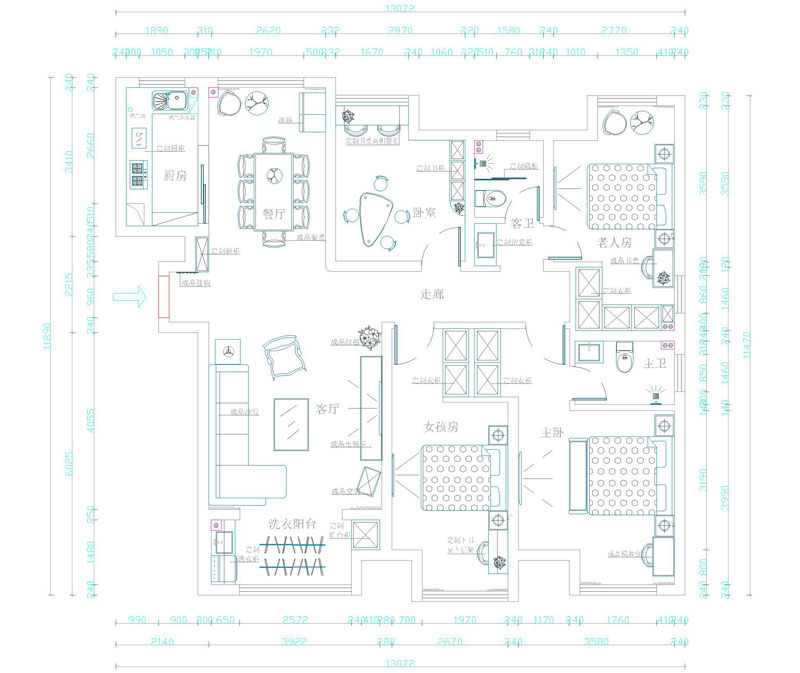
中海锦苑平面效果图
中海锦苑现代简约客厅效果图
中海锦苑现代简约客餐厅总览图
中海锦苑现代简约餐厅效果图
分享到:
微信
QQ好友
QQ空间
新浪微博
复制网址
上一篇:
郑州装饰设计公司
下一篇:
郑州别墅装修哪家好
选择您的装修风格
全部
选择合适的户型
全部
选择您的装修面积
全部
*新案例
郑州家装公司|西湖印象样板间--150㎡北欧风
郑州家装公司|西湖印象样板间--137㎡新中式
郑州装修公司|商都世贸中心办公区装修
郑州装修公司|恒大·金碧天下欧式别墅鉴赏
东易力天
企业简介
发展历程
企业荣誉
企业文化
设计团队
极易原创
极易家装案例
原创样板间
3D全景案例
视频直播
企业视频
工地直播
点击进去东易力天工装网站
扫一扫 QQ在线咨询
扫一扫 关注官方微信
在线客服
预约装修
装修报价
扫一扫
QQ在线咨询
扫一扫
关注官方微信
400-969-2116
㎡
获取报价
X
获取报价