【东易力天装饰】怡丰森林湖联排别墅设计案例
房屋面积:400㎡
设计风格:新古典风格
设计说明:郑州别墅装修原创设计师所设计的怡丰森林湖联排别墅主要是以奢华、高雅的欧式风格设计呈现丰富多彩且极具立体感的空间界面变化,华丽的吊灯和射灯尽显焕然一新的视觉之美。
东易力天郑州别墅装修原创设计师在对怡丰森林湖联排别墅装修设计时,整体空间材质色调选择的是古朴暖色系,灯光的选择多以暖白色为主,可营造出家的温馨之感,材料方面多以香槟色系瓷砖、墙纸、硬包、水银镜、橡木香槟色漆为主,家具家私为橡木香槟色漆布艺(或皮)材质的新古典风格。整体构造从空间分隔上多用拱形垭口或罗马柱来进行划分,从简单到繁杂,从整体到局部,精雕细琢,雕花刻金都给人一种一丝不苟的印象。通过古典而简约的家具、细节处的线条雕刻、富有西方风情的陈设配饰品的搭配,来营造出欧式特有的磅礴、厚重、优雅与大气。
客厅:本案郑州别墅装修原创设计师采用的是新古典风格,在欧式风格中融入了更多的现代元素与奢华元素,其*大特点是造型极其讲究,营造出端庄典雅、高贵华丽的视觉,且文化富含文化底蕴。客厅在选配家具时设计师多会采用宽大精美的家具,配以精致的雕刻,整体营造出一种华丽、高贵、温馨的感觉。
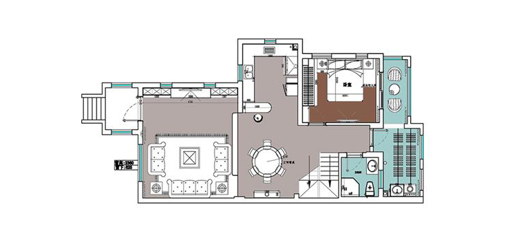
一层客厅电视背景墙效果图

一层客餐厅效果图

一层餐厅效果图

一层厨房效果图

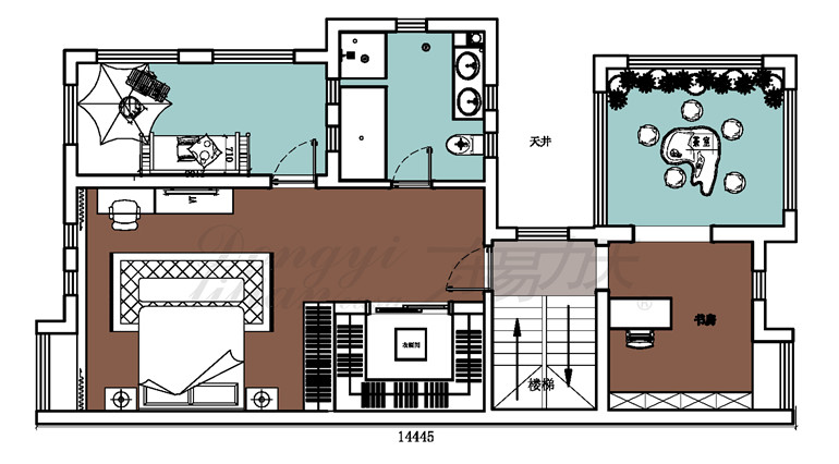
一层老人房效果图

一层洗衣房效果图
卧室:在卧室配饰上,东易力天装饰郑州别墅装修原创设计师采用金黄色和棕色的配饰,可衬托出古典家具的高贵与优雅,而赋予古典美感的窗帘和地毯、造型古朴的吊灯使整个空间看起来赋予韵律感且大方典雅。柔和的浅色花艺为整个空间带来了柔美的气质,给人以开放、宽容的非凡气度,让人丝毫不显局促。








