东易力天工装
全国服务热线:
13673369777
当前位置:首页>>极易原创>>极易家装案例
郑州装修公司幸福滨水家园C户型案例
作者:东易力天装饰 浏览量:2591次 发布日期:2018-08-24 14:23:35

       【东易力天装饰】东航幸福滨水家园C户型设计案例
        装修面积:139㎡
        设计风格:美式风格

        “原始户型”像极了一张画了几笔的宣纸,在“半命题”的框框里,东易力天郑州装饰公司“异想天开”的原创设计师们总会带来无限的可能......别出心裁的创作,艳惊四座!

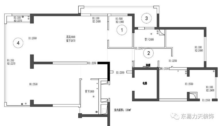
东航幸福滨水家园C户型原始户型:

 
       东航幸福滨水家园C户型解析:
       针对东航幸福滨水家园C户型原始户型的状况,东易力天郑州装饰公司原创设计师给出以下四点设计建议:
       1、由于该空间面积不大可以做一个小书房或者儿童房来使用,建议儿童房做成榻榻米。
       2、该区域可以作为衣帽间来使用,由于通道采光较弱,建议把卫生间那面墙打掉改为有机玻璃墙面,来增加采光。
       3、本区域属于室外机位置,由于空间比较大建议与卫生间打通改为淋浴间。
       4、阳台面积也比较大、光线充足,建议取消传统的推拉门让阳台与客厅延伸为一体增大家庭公共交流空间。
 
C户型平面布局图(方案2)

 

东航幸福滨水家园C户型方案二139平美式风格——客厅

 
东航幸福滨水家园C户型方案二139平美式风格——餐厅、厨房



 
东航幸福滨水家园C户型方案二139平美式风格——卫生间


 
东航幸福滨水家园C户型方案二139平美式风格——儿童房


 
东航幸福滨水家园C户型方案二139平美式风格——主卧、主卧卫生间



 
东航幸福滨水家园C户型方案二139平美式风格——次卧
选择您的装修风格
选择合适的户型
选择您的装修面积
扫一扫 QQ在线咨询
扫一扫 关注官方微信
在线客服预约装修装修报价

小程序扫一扫QQ在线咨询

社群扫一扫关注官方微信